Prestations
Conseil
Design
Réalisations
Tarifs
Contact
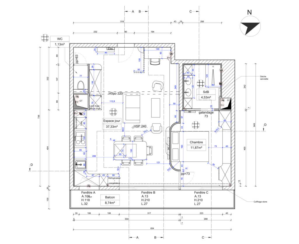
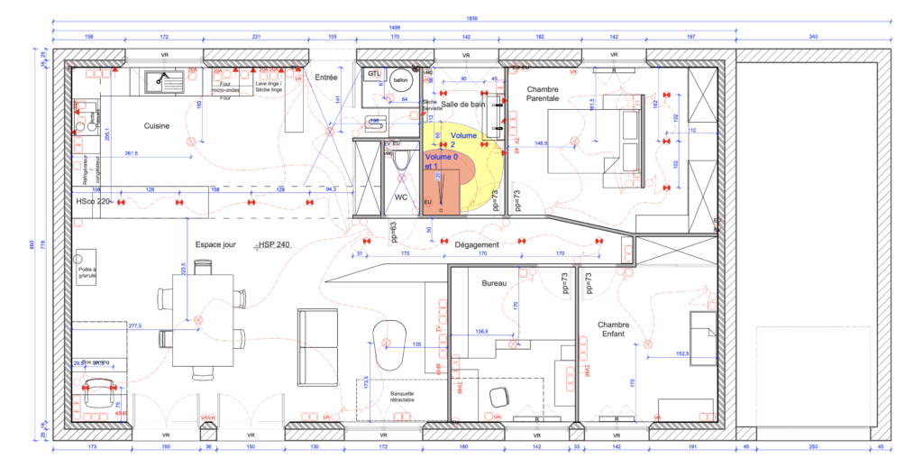
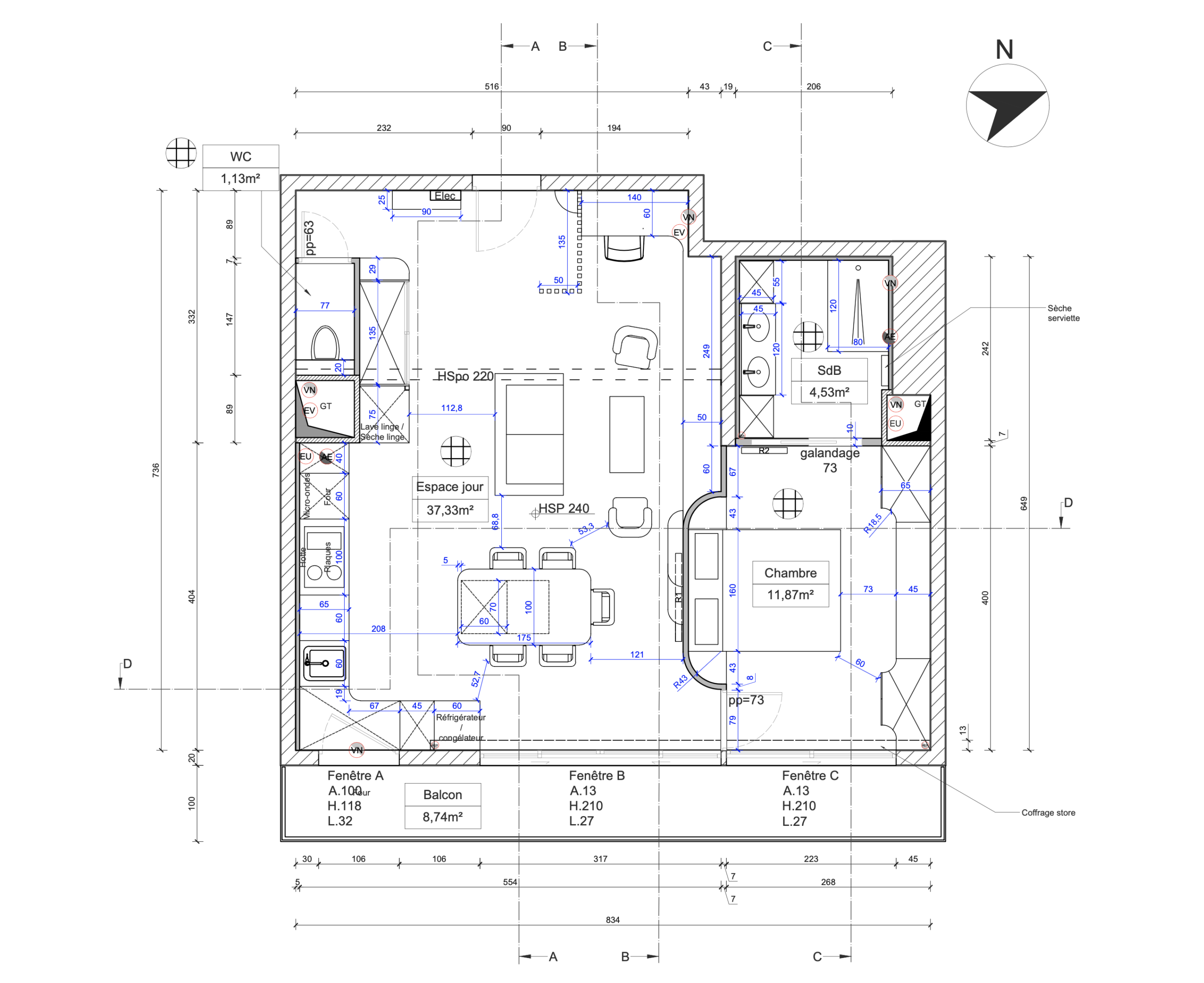
Réalisations